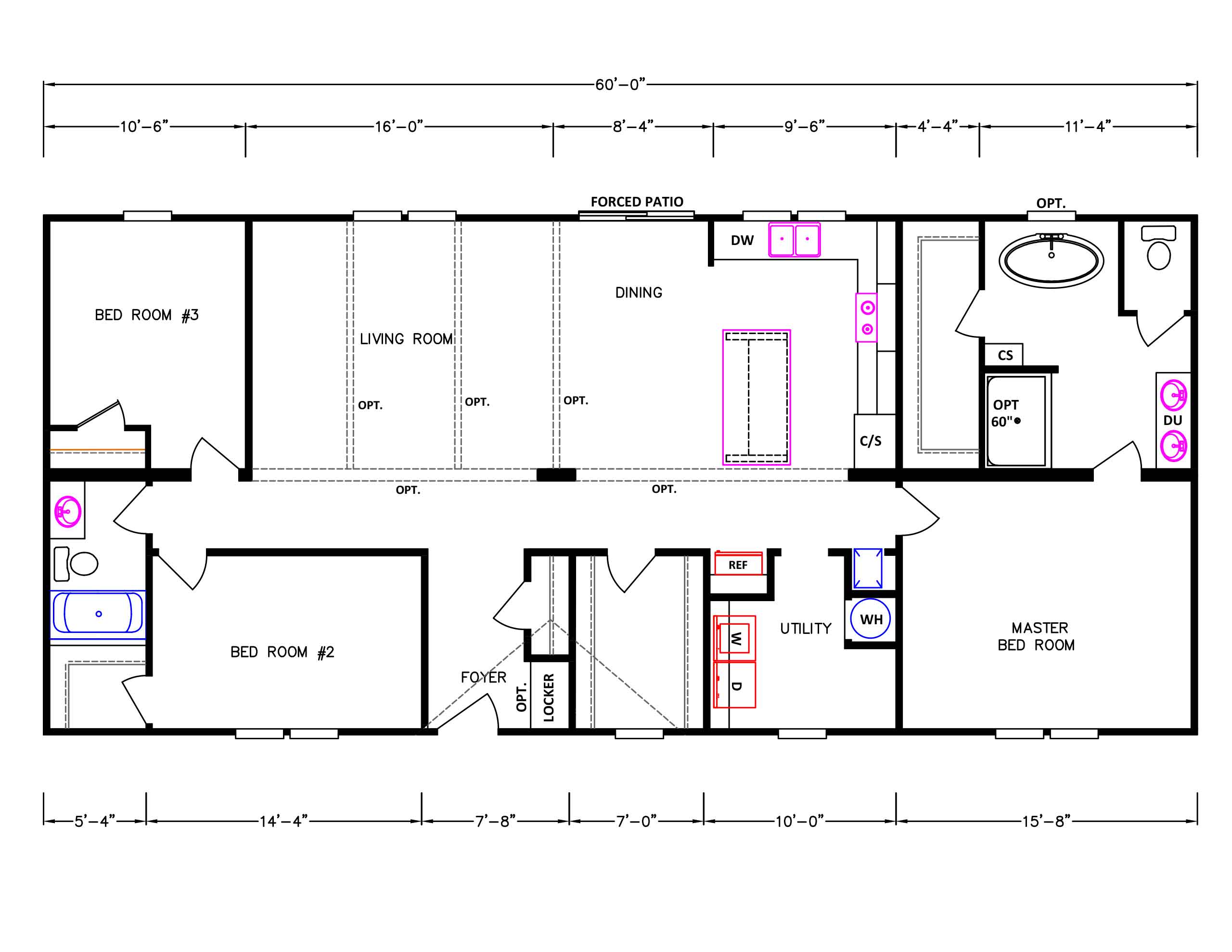
3
Bed(s)
2
Bath(s)
28x64
Dimensions
1620
Square Feet
MD
Series
MD-64
ID
Property Type
Features
KABCO Builders, Inc. reserves the right to change or alter prices, materials, construction application, floor plans, and specifications without notice or obligation.

























