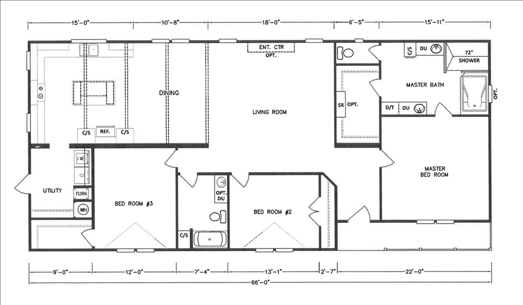
3
Bed(s)
2
Bath(s)
32x70
Dimensions
1980
Square Feet
MD
Series
MD-42-32
ID
Property Type
Features
KABCO Builders, Inc. reserves the right to change or alter prices, materials, construction application, floor plans, and specifications without notice or obligation.





























