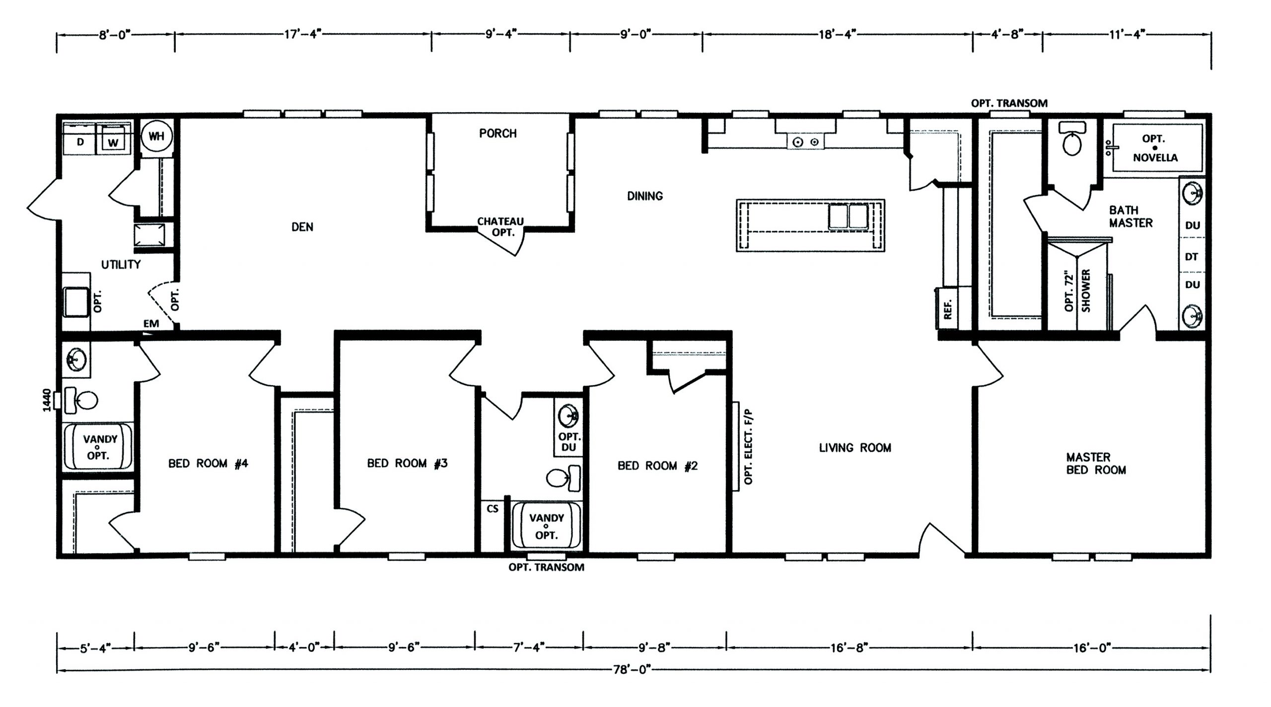
4 bedrooms
3 bathrooms
2340 sqft
32x82
4
Bed(s)
3
Bath(s)
32x82
Dimensions
2340
Square Feet
KB
Series
KB-3246
ID
Property Type
Features
Solid 12" I-Beam (All Models)
Full Length Outriggers
2x8 Floor Joist 16" O.C.
5/8" Tongue & Groove Plywood Floors
Trackless Carpet
Rebond Carpet Pad
16" Floor Tile (No Roll Goods)
48″ Trusses 16″ O.C.
(Nominal 4/12 Roof Pitch)
7/16″ OSB Roof Decking
Fiberglass Shingles
“Hardi-Plank” Fascia & Eaves
12″ Overhangs Vented All 4 Sides
Attic Vents
OSB or Plywood Exterior Wrap (Market Availability)
Premium Vinyl Siding
Paneled Shutters – 7 Selections
White Vinyl Thermopane Window (LowE)
Stained Glass Window Behind Tub (If Applicable)
Thermopane Picture Window L/R – Model Specific
Steel Front Door with Sunburst Design
Full View Storm Door on Front
9 Lite Cottage Door on Back
Dead Bolt Locks on All Exterior Doors
11-11-19 Insulation
Dormer @ Front Door Side
Air Ready Furnace
Water Cut-Offs T/O
Master Water Supply Cut-Off
40 Gallon Double Element Electric Water Heater
Pex Water Line System
Chandelier – Dining Room
Ceiling Fan – L/R
Deluxe Light Fixtures T/O
Deluxe Crown Molding T/O (Except Closets)
Wire Rack Shelving T/O
Carpet Bars @ Carpet & Tile
Glass Light Globes T/O
Vinyl Covered Sheetrock
32″ Bedroom Doors
28″ Bathroom Doors
Deluxe Drape Package T/O
2″ Plantation Blinds T/O
Cabinet Over Washer/Dryer
Residential Stipple Ceilings
Pre-Hung Interior Doors
Paneled Interior Doors
Heavy Duty 6-Finger Door Hinges
Deluxe Door Trim T/O
Floor Door Stops
Smoke Detectors in Bedrooms & LR
Solid Wood Door Frames
30″ Overhead Cabinets
Deluxe Hidden Hinges in All Cabinets
Drawers Above Doors T/O – Kitchen
Grass Roller Drawer System @ Kitchen
Drawer Stack – Master Bath
Middle Shelves in Base & Overhead Cabinets
Deeper Basin Stainless Steel Sink
Deluxe High-Rise Kitchen Faucet with Sprayer
Rolled Countertops
White Lined Cabinets – Both Baths
LED Recessed Canister Lighting (Kitchen)
18″ FF Refrigerator – Dishwasher – Electric Range
Deluxe Faucets T/O
Beveled Mirrors – Both Baths
Deluxe Wall Lights at All Lavatories
Deluxe Range Hood with Canopy
Fiberglass Tubs & Showers
48″ Shower – Master Bath with Door
60″ 1-Piece Tub – 2nd Bath
Deluxe Soaker Tub – Master Bath
Porcelain Lavatory Sinks in Baths
Tilt Drawers at All Sinks (Kitchen & Baths)
KABCO Builders, Inc. reserves the right to change or alter prices, materials, construction application, floor plans, and specifications without notice or obligation.





















