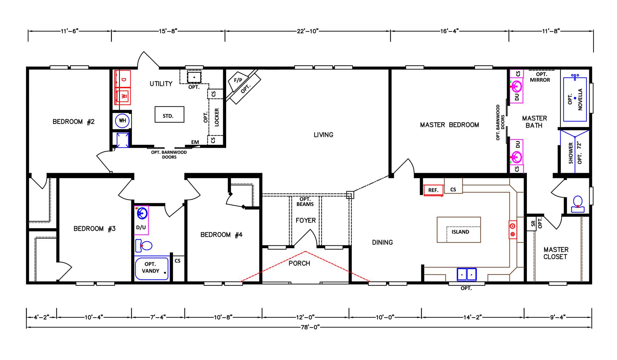
This beautifully crafted family home showcases a large covered porch entry leading into a spacious living room. You’ll find numerous elegant standard and custom options throughout the home. The wrap-around modern kitchen boasts an abundance of handcrafted cabinets, an expansive countertop space, a central island with a snack bar/workstation, and top-of-the-line name brand appliances.
4
Bed(s)
2
Bath(s)
32x82
Dimensions
2340
Square Feet
KB
Series
KB-3243
ID
Property Type
Features
KABCO Builders, Inc. reserves the right to change or alter prices, materials, construction application, floor plans, and specifications without notice or obligation.




















